The subject of the competition is the urban-architectural solution of the part of the block of the central city zone, between the following streets in Belgrade: Kralja Milana, Svetozara Markovića, Nemanjina and Kralja Milutina in Belgrade.
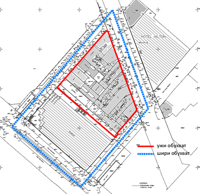
Competitive scope - a narrow competitive scope, which is the subject of the competition solution, is the area defined by the regulations of Kralja Milana, Svetozara Markovića, Kralja Milutina streets, and the internal road next to the building of the National Bank of Serbia. The total area of the narrow scope of the competition is about 0.7 ha.
Competitive scope - a broad competition scope is the entire block that includes the zone of the competition solution, the area defined by the regulations of the streets: Kralja Milana, Svetozara Markovića, Nemanjina and Kralja Milutina. The total area of the broad scope of the competition is about 1.9 ha.
The reason for announcing the competition is the Decision on the development of the Plan for detailed regulation of the city block between Nemanjina, Svetozara Markovića, Kralja Milana and Kralja Milutina streets ("Official Gazette of the City of Belgrade" No. 130/20) and the fact that this precious area is in the central zone of the city is today in an inadequate regime of use (in a significant part), neglected and inconsistent with the affirmed potentials of the immediate environment, both in terms of urbanity, construction and ambient, as well as in terms of utilization of functional, spatial and investment resources. The competition is announced for the purpose of checking the spatial and functional capacities of the location, review the construction rules and urban parameters defined by the valid PDR for the block between Nemanjina, Svetozara Markovića, Kralja Milana (Serbian rulers) and Kralja Milutina streets "Official Gazette of the City of Belgrade" 53/15 ), and in accordance with the PGR of the construction area of the headquarters of the local self-government unit – the City of Belgrade and obtaining proposals for the highest quality urban-architectural solution which will define the purposes, capacities and morphology of new construction within the competition scope and its relationship with the environment, especially in relation to the constructed multi-storey buildings with the aim of completing the urban transformation of the said block.
In accordance with the competition task, programme requirements, significance and potentials of the location, the aim of the competition is to choose the highest quality urban-architectural solution, which corresponds to the environment and is adapted to the values of the environment. The aim is to see the current potentials of the space in accordance with today's cultural-historical context, significance and development of the subject space, with the anticipation of future development, through competitive activities.
The aim of the competition is, based on the analysis of spatial qualities, potentials and limitations, as well as the needs and requirements of the immediate and wider environment:
- define optimal (the most rational and of the highest quality) development possibilities of the space and potentials for new construction;
- define the units according to the purpose and content of the facilities in accordance with the planned, ambient and other characteristics for which the rules of construction can be determined through planned elaboration;
- define height regulations in relation to neighboring structures, especially the two dominant facilities in the area: the National Bank of Serbia and the Hilton Hotel;
- review the space from all other aspects in order to develop the content and design of the location in accordance with the positional and essential importance for the immediate environment and the city as a whole;
- review and define, through spatial-program verification, the most optimal relationship of planned purposes and contents: housing, business, trade, etc., and in accordance with the broader position of the block in the urban matrix of the city;
- define a recognizable urban-architectural solution adequate to the significance of the location that corresponds to the environment;
- to determine and define pedestrian paths through the block, to see the views and stylistic characteristics of the buildings.
The selected solutions will represent the basis for the formulation of the planning solution and the preparation of urban - planning documentation for the subject area.

Figure 1 - Ortho-photo image with the border of the competition
Figure 2 - Cadastral plan with the boundary of the competition